Beschrijving
Te koop: Rustig wonen in ‘tropische’ sferen – Kokospalmhof 22, Amsterdam
Welkom bij Kokospalmhof 22: een licht en goed afgewerkte tussenwoning in een rustige, groene hof in Amsterdam. Deze woning combineert de levendigheid van de stad met een oase van rust – ideaal voor wie het beste van beide werelden zoekt.
Indeling:
Begane grond: Entree, hal, garderobekast en meterkast, toilet, Woonkamer met open keuken, trap naar de verdieping met trapbergkast, deur naar de tuin met houten berging en houten schuttingen. Toegang naar de parkeerplaats in de binneplaats.
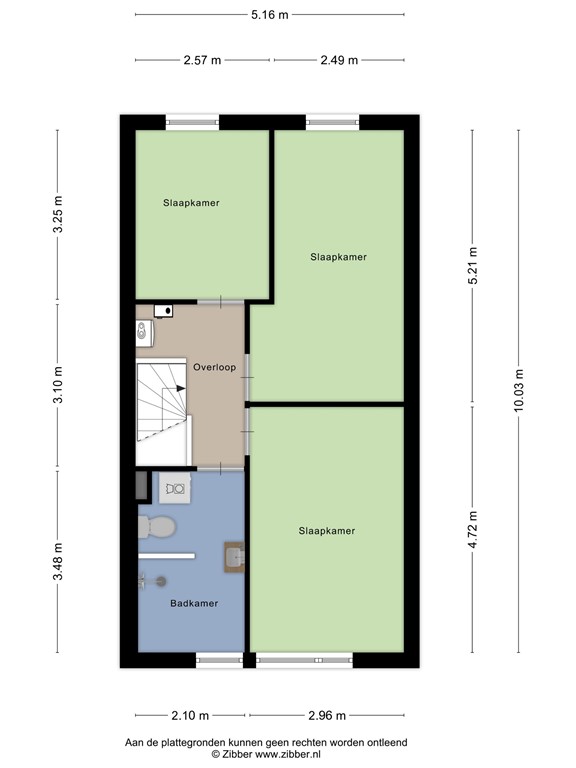
Verdieping: Overloop, 3 ruime slaapkamers, ruime badkamer met douche toilet, wastafel en aansluitpunt voor de wasmachine.
Bijzonderheden:
• Ruime woonkamer met grote raampartijen en besloten tuin op het westen
• Inbouwkeuken voorzien van inbouwapparatuur
• Drie goed bemeten slaapkamers – perfect voor een gezin, thuiswerkplek of logeerkamer
• Ruime badkamer met inloopdouche en toilet. Ruimte voor wasmachine en droger.
• Berging in de tuin en eigen parkeerplaats in de afsluitbare binnenplaats
• Gelegen in een autoluw hofje met speeltuin en veel groen in de buurt
• Eeuwigdurende afgekochte erfpacht
• Slechts enkele minuten van winkels, scholen, openbaar vervoer en uitvalswegen
Met zijn eigentijdse uitstraling en rustige ligging is Kokospalmhof 22 een plek waar je je direct thuis zult voelen.
Interesse? Plan vandaag nog een bezichtiging en ontdek zelf waarom Kokospalmhof 22 jouw nieuwe thuis kan worden!
Plattegronden
177050272_1580758_kokos_begane_grond_first_design_20250919_caa777.jpg
177050272_1580758_kokos_eerste_verdiepi_first_design_20250919_be5dca.jpg
177050272_1580758_kokos_berging_first_design_20250919_be583f.jpg
177050272_1580758_kokos_carport_first_design_20250919_7ed494.jpg