Beschrijving
Unieke kans !
Deze instapklare woning is de afgelopen jaren met veel aandacht en oog voor detail grotendeels gerenoveerd. Het resultaat: een eigentijdse, comfortabele gezinswoning welke weinig te wensen overlaat!
Wat maakt deze woning bijzonder?
+ Moderne keuken – Stijlvol vernieuwd en voorzien van hedendaags comfort .✔ Strakke wand- en vloerafwerking – Neutraal en smaakvol, passend bij iedere woonstijl.
+ Lichte woonkamer – Met grote raampartijen en een prettige indeling.
+ Fijne achtertuin – Ideaal om te ontspannen of gezellig te borrelen met vrienden en familie.
+ Meerdere slaapkamers – Perfect voor een gezin, thuiswerkplek of hobbyruimte.
Kenmerken:
* Bouwjaar 1970
* BG 108 m2
* Perceel 144 m2
* Energielabel C
Via het entree met garderobe, meterkast en modern toilet met fontein stapt u de smaakvol ingerichte woonkamer in.
Deze lichte doorzon woonkamer met open trap heeft een fijne flow.
De moderne keuken is voorzien van alle gemakken. Er is veel kastruimte en voldoende werkblad, een oven en magnetron op stahoogte, een ingebouwde vaatwasser, koelkast en inductie kookplaat.
Via de keuken heeft u toegang tot de heerlijke zonnige achtertuin met berging en achterom.
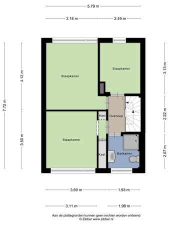
Op de eerste verdieping bevinden zich twee grote lichte slaapkamers, een fijne badkamer met douche, toilet en wasmeubel en een derde kamer, welke in gebruik is als kantoorruimte.
De trap op de overloop wordt afgescheiden door een glazen schuifdeur.
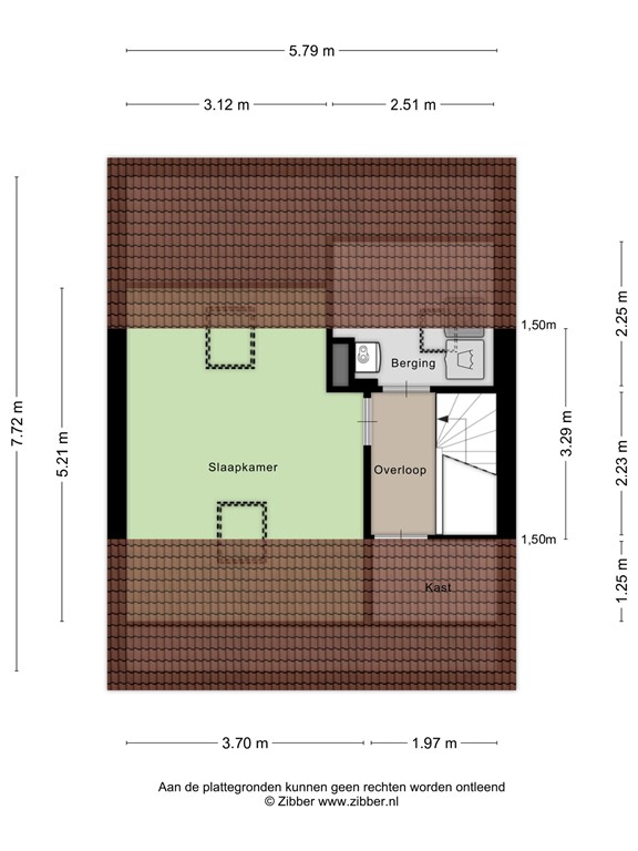
Op de tweede verdieping bevindt zich een aparte ruimte met CV ketel, wasmachine en droger. Verrassend is de fijne grote hobbykamer met dakramen aan voor en achterzijde.
Extra informatie:
• Het opnieuw trekken van alle leidingen. Op de begane grond zijn deze onder de vloer getrokken waarna er een heel nieuwe vloer over is gelegd. Dit geldt ook voor de 1e verdieping. Hierdoor zijn leidingen mooi weggewerkt en is de vloer extra geïsoleerd, De afwerkvloer (laminaat) werkt hierdoor nauwelijks en ligt goed strak, ook plintafwerking is erg netjes.
• De inbouw stopcontacten zijn grotendeels in originele staat. Ook zijn er door het hele huis nieuwe inbouw stopcontacten gelegd.
• Er zijn extra groepen aangelegd voor keuken appratuur & wasmachine en droger, de gehele meterkast is aangepast.
• Inbouwspots: in de slaapkamers zijn over de hele 1e verdieping te dimmen.
• De wasmachine aansluitingen en ketel zijn vanuit de schuur (via buiten) verlegd naar de 2e etage. Dit schijnt bij de meeste huizen nog altijd in de schuur geplaatst te zijn. Geeft stuk meer comfort wanneer je niet met je wasgoed buitenom moet lopen.
• Keuken is gesloten. Aan twee kanten kasten waar oven en magnetron op stahoogte zijn ingebouwd . Alle apparatuur aanwezig en een inductiekookplaat.
• Toilet begane grond is modern.
• Badkamer netjes wel enigszins gedateerd maar alles in goede staat. Deze is uit te breiden door bergkast erbij te betrekken waardoor er ruimte voor een bad ontstaat.
• Alle originele inbouwkasten zijn verwijderd waarna er nieuwe muren zijn geplaatst waarin de elektra leidingen. De slaapkamers zijn ruimer geworden en gemoderniseerd.
• Mooi aspect is dat de trap is ombouwt, met een glazen deur (wand) veilig voor kinderen maar zorgt er ook voor dat de warmte per verdieping wordt vastgehouden.
• 2e verdieping geïsoleerd en ook laminaat vloer aanwezig.
• Zolder: Overloop, grote afsluitbare hobbyruimte (4e slaapkamer) met aan beide zijden dakramen. Aparte wasruimte met Cv-ketel (2016) en voorzien van dakraam. Bergruimten onder schuine dak. Uitbreiding mogelijk naar 2 dakkapellen.
• Vrij grote afgesloten tuin met achterom poort op het Oosten, (veel privacy) voorzien van 2 zitplekken (overkapping achterin), goede formaat stenen schuur voor fietsen etc.
• Geheel betegelde voortuin met tegenover vrij uitzicht en een kleine speeltuin.
• Parkeren voor de deur.
Locatie
Gelegen in een rustige en kindvriendelijke woonomgeving, met scholen, winkels, sportvoorzieningen en openbaar vervoer op korte afstand. Het gezellige historische dorpscentrum van Breukelen aan de Vecht en de uitvalswegen richting Utrecht en Amsterdam zijn snel bereikbaar.
Kortom: een instapklare, moderne tussenwoning met veel comfort op een aantrekkelijke locatie.
Bijzonderheden
Wat zegt de verkoper:
“Voor mij zijn de pluspunten van dit huis, een rustige straat en omgeving. Vanuit de woonkamer kijk je uit op de bomen en het groene uitzicht.
Zowel voortuin als achtertuin rustige plekjes om te zitten met veel privacy. Centrale ligging met goede bereikbaarheid naar steden als Amsterdam & Utrecht.
In Breukelen is voor ieder iets te doen van wandelen of fietsten langs de vecht tot zwemmen in het Kikkerfort of koffiedrinken op het terras op de brink.
Het is een prachtige omgeving!”
Plattegronden
182935633_1632820_grift_begane_grond_first_design_20260304_bc4473.jpg
182935633_1632820_grift_eerste_verdiepi_first_design_20260304_b02563.jpg
182935633_1632820_grift_overkapping_first_design_20260304_8dddcb.jpg
182935633_1632820_grift_tweede_verdiepi_first_design_20260304_53096f.jpg
182935633-297667777-se-150636385-1772639592625.png
182935633-297690358-se-150636385-1772639592625.png
182935633-297691243-se-150636385-1772639592625.png
182935633-297691669-se-150636385-1772639592625.png